För att ge dig bättre service använder vi
cookies
. Genom att fortsätta på sidan godkänner du vår användning av cookies.
Acceptera
Javascript är inaktiverat!
Du kommer inte kunna handla så länge Javascript är inaktiverat i din webbläsare. Var vänlig aktivera stödet för Javascript i din webbläsare och ladda om denna sida innan du fortsätter.
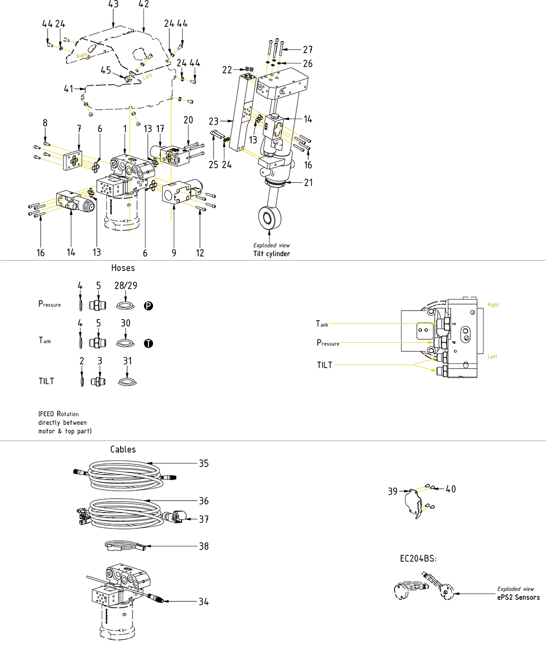
Antal träffar 44
Pos
Artikelkod
Benämning
Övrig info
Antal
1
1078622
Valve block EC204B
Part of quick hitch
1
Välj
2
710702
Seal washer GBR04 1/4"
2
Välj
3
710135
Adapter 138-04-29 ( compact 136-04-04 )
2
Välj
4
710703
Seal washer GBR06 3/8"
2
Välj
5
710106
Adapter 136-06-06
2
Välj
6
710901
O-ring 9,25x1,78 FKM 90 shore Viton Green NG6
8
Välj
7
730320
Cover plate NG6
1
Välj
8
610401
Screw MC6S 5x16 12.9 untreated ISO4762
4
Välj
9
730112
Directional valve closed NG6 12V JT
(POS.6, 10, 11 incl.)
1
Välj
10
730117
Coil 12V NG6 JT on/off
1
Välj
11
730135
Nut directional valve Argo Hytos
1
Välj
12
610403
Screw MC6S 5x30 12.9 untreated ISO4762
Torque: 9,7Nm
4
Välj
13
710960
O-ring 7,65x1,78 FKM 90 shore Viton NG4
12
Välj
14
7000101
Directional valve NG4 closed 12V DT
(POS.13, 15 incl.)
2
Välj
15
1006785
Nut directional valve NG4
2
Välj
16
610404
Screw MC6S 5x35 12.9 untreated ISO4762
Torque: 9,7Nm
8
Välj
17
1042045
Directional valve NG4 IQS lock 12V DT ss9 Coil A
(POS.13, 18, 19 incl.)
1
Välj
18
1042065
Coil NG4 IQS lock 12V DT
1
Välj
19
710250
Nut bulkhead adapter 1270-04
1
Välj
20
610407
Screw MC6S 5x50 12.9 untreated ISO4762
Torque: 9,7Nm
3
Välj
21
1077744
Tilt cylinder EC204B
Part of top part
1
Välj
22
7001940
O-ring 6,75x1,78 NBR 70 shore
4
Välj
23
1075504
Valve block EC204B tilt cylinder
1
Välj
24
611039
Washer NL6-DPE 6,5x10,8x1,7
QTY: 8 part of make up
10
Välj
25
610591
Screw MC6S 6x35 12.9 untreated ISO4762
2
Välj
26
611038
Washer NL5-DPE 5,4x9,0x1,7
4
Välj
27
610405
Screw MC6S 5x40 12.9 untreated ISO4762
Torque: 9,7Nm
4
Välj
28
7001991
Hose
1
Välj
29
7002065
Hose
1
Välj
30
7001992
Hose
1
Välj
31
7001990
Hose
2
Välj
32
7002025
Hose
Part of quick hitch assy.
1
Välj
33
7002026
Hose
Part of quick hitch assy.
1
Välj
35
8002249
Cable QS - QLM - Quick Hitch M12-4,35m
1
Välj
36
8002496
Unit cable-ss9-2 EC204B
1
Välj
37
810208
ILME cover21.21 with lever CKAX 03 CXA
(Incl. with agg.cable)
1
Välj
38
8002497
Unit cable-ss9 joint EC204B
Joint to Tilt
1
Välj
39
1076341
End lock protection plate EC204BS
1
Välj
40
6000408
Screw K6S 5x10 10.9 FZB ISO7380
4
Välj
41
1076425
Cover plate EC204B TM-module
Part of make up
1
Välj
42
1076007
Protective cover valve block EC204B left
Part of make up
1
Välj
43
1076360
Protective cover valve block EC204B right
Part of make up
1
Välj
44
6000242
Screw K6S 6x14 10.9 FZB ISO7380
Part of make up
8
Välj
45
6000411
Cage nut M6
Part of make up
2
Välj
Start
>
engcon för grävmaskiner
>
Tiltrotatorer
>
EC204B
>
Styrsystem
>
ss9IQ
Meny
Start
Hjälp
Kontakta oss
Logga in
Tiltrotatorer
EC204
Överdel
Standard komponenter
S40
UNI
CW05GP
CW05EC
SW03
Tiltcylindrar
EC204 - 1029849
EC-Oil komponenter
Top ECO40 W
Top ECO45/50 W
Top ECO60 W
Top ECO70 W
Top ECO80 W
Servicepaket
Styrsystem
ss10 (DC2/SVAB)
ss9IQ
Rotatorstomme
Huvudkomponenter
Centralsmörjning (1032960)
Block & Svivlar
Ventilblock 2v & Svivel 4-ch EC204
Redskapsfäste
S40S
S40S GR05
S40
S40 GR05
CW05GP
CW05GP GR05
CW05EC
CW05EC GR05
HS03ECS
HS03EC
Standard komponenter
Std komp. S40S
Std komp. S40
Std komp. HS03EC/HS03ECS
Std komp. CW05GP
Låscylindrar
S40/HS03EC - 1003530
Integrerad grip
GR05
Gripcylindrar
GR05 - 301900K/301901K
EC204B
Överdel
ePS2 Sensors
Standard komponenter
QS40
UNI
CW05
EC-Oil komponenter
Top ECO40 W
Top ECO45/50 W
Top ECO60 W
Top ECO70 W
Top ECO80 W
Styrsystem
DC2
ss9IQ
ss9SQ
ss0
ss0 - EC204BU
Rotatorstomme
ePS2 Sensors
Huvudkomponenter
Centralsmörjning (1079207)
Block & Svivlar
Anslutningsbl. & Svivel QSM40
Redskapsfäste
Brytstöd
QSM40
CW05GP
CW05GP GR05
S40SEMI
Standard komponenter
Std komp. QSM40
Std komp. CW05GP
Std komp. S40SEMI
Låscylindrar
QSM40 - 1063791
EC-Oil komponenter
Hitch ECO40 W
Hitch ECO45/50 W
Hitch ECO60 W
Hitch ECO70 W
Hitch ECO80 W
EC206
Överdel
Standard komponenter
QS40
QS45/50
UNI
CW05
SW03
Tiltcylindrar
EC206 - 1040873 (from 2017-01)
EC206 - 1023189 (until 2016-12)
EC-Oil komponenter
Top ECO40 W
Top ECO45/50 W
Top ECO60 W
Top ECO70 W
Top ECO80 W
Styrsystem
ss10 (DC2/SVAB)
ss9IQ
ss9SQ
Rotatorstomme
Huvudkomponenter
Centralsmörjning V2 (1040208) from 201701
Block & Svivlar
Ventilblock 5v & Svivel 6-ch EC206
Redskapsfäste
S40S
S40S GR05
QS45/QS50
QS45/QS50 GR10
S40
S40 GR05
S45/S50
S45/S50 GR10
HS03ECS
HS03EC
CW10EC
Standard komponenter
Std komp. S40S
Std komp. QS45/50
Std komp. S40
Std komp. S45/50
Std komp. CW10EC
Std komp. HS03EC/HS03ECS
Låscylindrar
QS45/50 V4 Forged - 1067285
QS45/50 V4 - 1048780
QS45/50 V3 - 1036925
QS45/50 V2 - 1027573
QS45 - 1025383
S45/50 - 1021885 (rotated ear)
S40/HS03EC - 1003530
HYD - 301448
EC-Oil komponenter
Hitch ECO40 W
Hitch ECO45/50 W
Hitch ECO60 W
Hitch ECO70 W
Hitch ECO80 W
Integrerad grip
GR05
GR10
Gripcylindrar
GR05 - 301900K/301901K
GR10 - 301898K/301470K
EC206B
Överdel
ePS2 Sensors
Standard komponenter
QS40
UNI
Tiltcylindrar
EC206B - 1066135
EC-Oil komponenter
Top ECO40 W
Top ECO45/50 W
Top ECO60 W
Top ECO70 W
Top ECO80 W
Styrsystem
DC2
ss9IQ
ss9SQ
ss0
Rotatorstomme
ePS2 Sensors
Huvudkomponenter
Centralsmörjning (7001722)
Block & Svivlar
Anslutningsbl. & Svivel QSM40
Redskapsfäste
Brytstöd
QSM40
Standard komponenter
Std komp. QSM40
Låscylindrar
QSM40 - 1063791
EC-Oil komponenter
Hitch ECO40 W
Hitch ECO45/50 W
Hitch ECO60 W
Hitch ECO70 W
Hitch ECO80 W
EC209
Överdel
Standard komponenter
QS45/50
UNI
HYD/Hydrema
SW33
CW10
Liebherr
Tiltcylindrar
EC209 - 1041412
EC209 - 1019630/1023761/1023760 (until 2017-01)
EC-Oil komponenter
Top ECO40 W
Top ECO45/50 W
Top ECO60 W
Top ECO70 W
Top ECO80 W
Servicepaket
Styrsystem
ss10 (DC2/SVAB)
ss9IQ
ss9SQ
ss0
Rotatorstomme
ePS1 Sensor
Huvudkomponenter
Centralsmörj. V2 (1059026) from 2020-06
Centralsmörj. (1021742) until 2020-06
Block & Svivlar
Ventilbl. & Sv. EC10-30/209/219/226 '6-ch'
Redskapsfäste
Se EC209B för QSM
Brytstöd
QSD45/50
QS45/50
QS45/50 GR10
S45/50
S45/50 GR10
Hydrema
Hydrema GR10
CW10EC
CW10EC GR10 V2
SW33EC V2
HS08EC
ECPUP45/50
Standard komponenter
Std komp. QS45/50 / QSD45/50
Std komp. S45/50
Std komp. Hydrema
Std komp. CW10EC
Std komp. HS08EC/HS08ECS
Std komp. SW33EC/SW48EC V2
Std komp. ECPUP45/50
Låscylindrar
QS45/50 V4 Forged - 1067285
QS45/50 V4 - 1048780
QS45/50 V3 - 1036925
QS45/50 V2 - 1027573
QS45 - 1025383
S45/50 - 1021885 (rotated ear)
HYD - 301448 'Hydrema'
SW33 - 401268
EC-Oil komponenter
Hitch ECO40 W
Hitch ECO45/50 W
Hitch ECO60 W
Hitch ECO70 W
Hitch ECO80 W
Integrerad grip
GR10
Gripcylindrar
GR10 - 301898K/301470K
EC209B
Överdel
ePS2 Sensors
Standard komponenter
QS45/50
UNI
HYD
Tiltcylindrar
EC209/B - 1041412
EC-Oil komponenter
Top ECO40 W
Top ECO45/50 W
Top ECO60 W
Top ECO70 W
Top ECO80 W
Styrsystem
DC3
ss10 (DC2/SVAB)
ss9IQ
ss9SQ
ss0
Rotatorstomme
ePS2 Sensors
Huvudkomponenter
Centralsmörjning (1056598)
Block & Svivlar
Anslutningsbl. & Svivel QSM45/50
Redskapsfäste
Brytstöd
QSM45
QSM50
Standard komponenter
Std komp. QSM45/50
Låscylindrar
QSM45 Forged - 1067280
QSM45 - 1055643
EC-Oil komponenter
Hitch ECO40 W
Hitch ECO45/50 W
Hitch ECO60 W
Hitch ECO70 W
Hitch ECO80 W
EC214
Överdel
ePS2 Sensors
Standard komponenter 'QSM'
QS60 'QSM'
UNI 'QSM'
Standard komponenter 'ECHF'
QS60 'ECHF'
QS45/50 'ECHF'
UNI 'ECHF'
Hydrema 'ECHF'
Huddig 'ECHF'
Tiltcylindrar
EC214 - 1041414
EC214 - 1024186 (until 2017-05)
EC214W - 1030380
EC-Oil komponenter
Top ECO40 W
Top ECO45/50 W
Top ECO60 W
Top ECO70 W
Top ECO80 W
Servicepaket
Styrsystem
DC3 'QSM'
ss10 (DC2/SVAB) 'QSM'
ss9IQ 'QSM'
ss9SQ 'QSM'
ss10 (DC2/SVAB) 'ECHF'
ss9IQ 'ECHF'
Std. Ventiler & kablar
DC3 'QSM'
ss10 (DC2/SVAB) 'QSM'
ss9 'QSM'
ss10 (DC2/SVAB) 'ECHF'
ss9 'ECHF'
ss10 (DC2/SVAB) '6-ch'
ss9 '6-ch'
ss5 '6-ch'
Rotatorstomme
ePS2 Sensors
ePS1 Sensor
Huvudkomponenter
Centralsmörjning (1026699)
Block & Svivlar
Anslutningsbl. & Svivel QSM60
Anslutningsbl. & Svivel QSM CW30/40
Ventilblock & Svivel ECHF
Redskapsfäste
Brytstöd
QSM60
QSD45/50
QSD60
QS45/50
QS45/50 GR10
QS45/50 GR20
QS45/50 GR20RR/GR20R2
QS60
QS60 GR10
QS60 GR20
QS60 GR20RR/GR20R2
CW30(S)EC
CW30(S)EC GR20
HS08ECS
HS10EC
HS10EC GR20
ECPUP60/65
Standard komponenter
Std komp. QSM60
Std komp. QS45/50 / QSD45/50
Std komp. QS60 / QSD60
Std komp. CW30/CW40 QSM
Std komp. CW30EC/CW40EC
Std komp. SW33EC/SW48EC V2
Std komp. HS08EC/HS08ECS
Std komp. HS10EC/HS10ECS
Std komp. ECPUP60/65
Låscylindrar
QS45/50 V4 Forged - 1067285
QS45/50 V4 - 1048780
QS45/50 V3 - 1036925
QS45/50 V2 - 1027573
QS45 - 1025383
QS60 V4 - 1045379
QS60 - 1036394 ('Sensor i utstötare')
QS60 V2 - 1027595
QS60 - 1023788
EC-Oil komponenter
Hitch ECO40 W
Hitch ECO45/50 W
Hitch ECO60 W
Hitch ECO70 W
Hitch ECO80 W
Integrerad grip
GR10
GR20 'Kolvstång ø40'
GR20R2 'Järnvägsgrip'
Gripcylindrar
GR10 - 301898K/301470K 'Kolvstång ø32'
GR20 - 301931K/301469K 'Kolvstång ø40'
EC219
Överdel
ePS2 Sensors
Standard komponenter 'QSM'
QS60 'QSM'
UNI 'QSM'
Menzi muck 'QSM'
Standard komponenter 'ECHF'
QS60 'ECHF'
UNI 'ECHF'
S1 'ECHF'
Hydrema 'ECHF'
SW33 'ECHF'
Menzi muck 'ECHF'
T620V 'ECHF'
QS60, S60, S1HD '6-ch'
Tiltcylindrar
EC219 - 1070275 (from 2024-06)
EC219 - 1019892/1023713/1023714/1017501
EC219W - 1023811
EC-Oil komponenter
Top ECO40 W
Top ECO45/50 W
Top ECO60 W
Top ECO70 W
Top ECO80 W
Servicepaket
Styrsystem
DC3 'QSM'
ss10 (DC2/SVAB) 'QSM'
ss9IQ 'QSM'
ss9SQ 'QSM'
ss10 (DC2/SVAB) 'ECHF'
ss9IQ 'ECHF'
ss9SQ 'ECHF'
ss10 (DC2) '6-ch'
ss10 (SVAB) '6-ch'
ss9 '6-ch'
ss5 '6-ch'
Std. Ventiler & kablar
DC3 'QSM'
ss10 (DC2/SVAB) 'QSM'
ss9 'QSM'
ss10 (DC2/SVAB) 'ECHF'
ss9 'ECHF'
ss10 (DC2/SVAB) '6-ch'
ss9 '6-ch'
ss5 '6-ch'
Rotatorstomme
ePS2 Sensors
ePS1 Sensor
Huvudkomponenter
Centralsmörjning (1021135) from 201303
Block & Svivlar
Anslutningsbl. & Svivel QSM60
Ventilblock 5v & Svivel ECHF
Ventilbl. & Sv. EC10-30/209/219/226 '6-ch'
Redskapsfäste
Brytstöd
QSM60
QSD60 'ECHF'
QS60 'ECHF'
QS60 GR20 'ECHF'
QS60 GR20RR/GR20R2 'ECHF'
S60 'ECHF'
S60 GR20 'ECHF'
S1 'ECHF'
S1 GR20 'ECHF'
HS10ECS 'ECHF'
HS10EC 'ECHF'
HS10EC GR20 'ECHF'
SW33EC 'ECHF'
SW33EC GR20 'ECHF'
T620V 'ECHF'
ECPUP60/65 'ECHF'
QS60 GR20 '6-ch'
QS60 '6-ch'
S60 '6-ch'
S60 GR20 '6-ch'
S1 '6-ch'
S1 GR20 '6-ch'
Standard komponenter
Std komp. QSM60
Std komp. QS60 / QSD60
Std komp. S60 (until 2018)
Std komp. S1
Std komp. S2
Std komp. Hydrema
Std komp. CW30EC/CW40EC
Std komp. SW33EC/SW48EC V2
Std komp. HS10EC/HS10ECS
Std komp. T620V
Std komp. ECPUP60/65
Låscylindrar
QS60 v4 - 1045379
QS60 - 1036394 ('Sensor i utstötare')
QS60 v2 - 1027595
QS60 - 1023788
S60 EC - 400986 (until 2018)
S1 - 400651K '25mm'
HYD - 301448 'Hydrema'
EC-Oil komponenter
Hitch ECO40 W
Hitch ECO45/50 W
Hitch ECO60 W
Hitch ECO70 W
Hitch ECO80 W
Integrerad grip
GR20
GR20 HD
GR20R2 'Järnvägsgrip'
Gripcylindrar
GR20 - 301931K/301469K
GR20R2 - 1032503
GR20RR Ø70/40 - 1020026
EC226
Överdel
ePS2 Sensors
Standard komponenter 'QSM'
QS70 'QSM'
UNI 'QSM'
Standard komponenter 'ECHF'
QS70 'ECHF'
UNI 'ECHF'
S1 'ECHF'
S2 'ECHF'
Arden QA51 'ECHF'
S60/QS70 '6-ch'
QS70, S1, S2, SMP1, servicepaket
Tiltcylindrar
EC226 - 1019884/1023715/1023716/1017259
EC226 - 1017719 'För B27/S2/KM2/SW48'
EC226W - 1023811
EC-Oil komponenter
Top ECO40 W
Top ECO45/50 W
Top ECO60 W
Top ECO70 W
Top ECO80 W
Styrsystem
DC3 'QSM'
ss10 (DC2/SVAB) 'QSM'
ss9IQ 'QSM'
ss9SQ 'QSM'
ss10 (DC2/SVAB) 'ECHF'
ss9IQ 'ECHF'
ss9SQ 'ECHF'
ss10 DC2 '6-ch'
ss10 SVAB '6-ch'
ss9 '6-ch'
ss5 '6-ch'
Std. Ventiler & kablar
DC3 'QSM'
ss10 (DC2/SVAB) 'QSM'
ss9 'QSM'
ss10 (DC2/SVAB) 'ECHF'
ss9 'ECHF'
ss10 (DC2/SVAB) '6-ch'
ss9 '6-ch'
ss5 '6-ch'
Rotatorstomme
ePS2 Sensors
ePS1 Sensor
Huvudkomponenter
Centralsmörj. V3 (1021136) from 201303
Block & Svivlar
Anslutningsbl. & Svivel QSM70
Ventilblock & Svivel ECHF
Ventilbl. & Sv. EC10-30/209/219/226 '6-ch'
Redskapsfäste
Brytstöd
QSM70
QS70 'ECHF'
QS70 GR20 'ECHF'
S70 'ECHF'
S70 GR20 'ECHF'
S1 'ECHF'
S1 GR20 'ECHF'
S2 'ECHF'
S2 GR20 'ECHF'
CW30(S)EC 'ECHF'
CW30(S)EC GR20 'ECHF'
ECPUP60/65 'ECHF'
S70 '6-ch'
S70 GR20 '6-ch'
S1 '6-ch'
S1 GR20 '6-ch'
Standard komponenter
Std komp. QSM70
Std komp. QS70
Std komp. S70
Std komp. S1
Std komp. S2, NTP30
Std komp. CW30EC/CW40EC
Std komp. SW33EC/SW48EC V2
Std komp. ECPUP60/65
Låscylindrar
QS70 V4 Forged - 1058122
QS70 V4 - 1049245
QS70 V2 - 1028940
QS70 - 1035613 'diam. 50mm'
QS70 - 1025624
S70 - 1014515 'spring'
S1/S2/S3/NTP30 - 400651K '25mm'
EC-Oil komponenter
Hitch ECO40 W
Hitch ECO45/50 W
Hitch ECO60 W
Hitch ECO70 W
Hitch ECO80 W
Integrerad grip
GR20
GR30
Gripcylindrar
GR20/GR30 - 301931K/301469K
EC233
Överdel
ePS2 Sensors
Standard komponenter 'QSM'
QS80 'QSM'
QS70 'QSM'
Standard komponenter 'ECHF'
QS70 'ECHF'
QS80 'ECHF'
UNI 'ECHF'
S1 'ECHF'
S2 'ECHF'
B27 'ECHF'
NTP30 'ECHF'
S1, S3, CW40 'ECHF'
Tiltcylindrar
EC233 - 1039112
EC-Oil komponenter
Top ECO40 W
Top ECO45/50 W
Top ECO60 W
Top ECO70 W
Top ECO80 W
Styrsystem
DC3 'QSM'
ss10 (DC2/SVAB) 'QSM'
ss9IQ 'QSM'
ss10 (DC2/SVAB) 'ECHF'
ss9IQ 'ECHF'
ss9SQ 'ECHF'
Std. Ventiler & kablar
DC3 'QSM'
ss10 (DC2/SVAB) 'QSM'
ss9 'QSM'
ss10 (DC2/SVAB) 'ECHF'
ss9 'ECHF'
ss10 (DC2/SVAB) '6-ch'
ss9 '6-ch'
ss5 '6-ch'
Rotatorstomme
ePS2 Sensors
ePS1 Sensor
Huvudkomponenter
Centralsmörjning (1040866)
Block & Svivlar
Anslutningsbl. & Sviv. QSM QS80/CW40
Anslutningsbl. & Svivel QSM70
Ventilblock & Svivel ECHF
Redskapsfäste
Brytstöd
QSM70
QSM QS80
QSM QS80 GR30
QSM CW40
QSM CW40 GR20
QS70
QS70 GR20
QS80
QS80 GR30
S1
S1 GR20
S2
S2 GR20
CW40(S)EC
NTP30
NTP30 GR20
Standard komponenter
Std komp. QSM QS80
Std komp. QSM70
Std komp. QS70
Std komp. QS80
Std komp. S1
Std komp. S2, NTP30
Låscylindrar
QS70 V4 Forged - 1058122
QS70 V4 - 1049245
QS70 V2 - 1028940
QS70 80/50 - 1035613
QS70 - 1025624
QS80 V2 - 1048783
QS80 - 1035494
S1/S3 - 400651K
S2/NTP30 - 402503K
EC-Oil komponenter
Hitch ECO40 W
Hitch ECO45/50 W
Hitch ECO60 W
Hitch ECO70 W
Hitch ECO80 W
Integrerad grip
GR20
GR30
Gripcylindrar
GR20/GR30 - 301931K/301469K
EC02
B-serien
Överdel
Standard komponenter
S30/180
CW05GP
Tiltcylindrar
EC02B - 1053601
Styrsystem
DC2
ss9IQ
ss0 - EC02BU
Rotatorstomme
Huvudkomponenter
Block & Svivlar
Anslutningsbl. & Svivel EC02B
Redskapsfäste
S30S/180
CW05GP
S30SEMI
Standard komponenter
Std komp. S30S
Std komp. CW05GP
Std komp. S30SEMI
Föregående serie
Överdel
Standard komponenter
S30/150, S30/180
S40
Tiltcylinder
EC02 - 303440/303561
Styrsystem
ss10 (DC2/SVAB)
ss5
ss3
Rotatorstomme
from 2008-05-13
until 2008-05-12
Block & Svivlar
Ventilblock & Svivel EC02
Redskapsfäste
S30/150
S30/180
S40
S40 Mekanisk
Standard komponenter
Std komp. S40
Std komp. S40M
Std komp. S40SEMI
Låscylindrar
S30 - 303489
S40 - 1003530
EC05
B-serien
Överdel
Överdel
Komponenter
Tiltcylinder
EC05B - 1001840/1008573
Styrsystem
ss10 (DC2/SVAB)
ss9IQ
ss5
Rotatorstomme
Huvudkomponenter
Block & Svivlar
Ventilblock & Svivel EC05B
Redskapsfäste
S40
S40 GR05
Standard komponenter
Std komp. S40
Std komp. S45/S50
Std komp. CW10EC
Låscylindrar
S40 - 1003530
S45/50 - 400848
Integrerad grip
GR05
GR10
Gripcylindrar
GR05 - 301900K/301901K
GR10 - 301898K/301470K
Föregående serie
Överdel
Överdel
Tiltcylinder
EC05 - 400552
El/hydraulik
Elsystem
Hydraulsystem
Rotatorstomme
Standard komp. 'Fram till 2008-10-30'
-> 2008-12-31 (Omvänd)
Block & Svivlar
Ventilbl. 0v & Sviv. 4-ch 'med hållare' EC05A
Ventilbl. 2v & Svivel 4-ch EC05
Redskapsfäste
S40
S45/S50
HYD 'Hydrema'
SMP3
Standard komponenter
Låscylindrar
S40 - 300783
S45/50 - 400848
HYD 'Hydrema' - 301448
SMP3 - 202735
Integrerad grip
GR05
GR10
Gripcylindrar
GR05 - 301900K/301901K
GR10 - 301898K/301470K
EC10
B-serien
Överdel
Överdel
Komponenter
Tiltcylinder
EC10B - 1011837/1011835
Styrsystem
ss10 DC2
ss10 SVAB
ss5 Menzi Muck
Std. Ventiler & kablar
ss10 (DC2/SVAB)
ss9
ss5
Rotatorstomme
Huvudkomponenter
Huvudkomponenter 'Omvänd'
Block & Svivlar
Ventilbl. & Sv. EC10-30/209/219/226 '6-ch'
Redskapsfäste
S45
PUP50A
Standard komponenter
Std komp. S45/S50
Std komp. SW33EC V2
Std komp. CW10EC
Låscylindrar
S45/50 - 400848
Integrerad grip
GR10
Gripcylindrar
GR10 - 301898K/301470K
Föregående serie
Överdel
Överdel
Tiltcylinder
EC10 Marine - (404998)
EC10 - 1008113/1000311 'gjutna ok'
EC10 - 400553
El/hydraulik
Elsystem
Hydraulsystem
Rotatorstomme
Huvudkomponenter
Huvudkomponenter 'Omvänd'
Rädlinger Huvudkomp.
Block & Svivlar
Ventilbl. & Sv. EC10-30/209/219/226 '6-ch'
Ventilbl. 4v & Svivel 4-ch EC10/20/30
Redskapsfäste
S45/S50 EC10
S50 EC10
Lehnhoff EC10
SMP3 EC10
SMP8 EC10
HYD EC10 'Hydrema'
SW33 EC10
GJ300 EC10
GJ300 Mk2 EC10
Låscylindrar
S45/50 - 400848
SMP3, Lännen - 202735
HYD 'Hydrema' - 301448
Integrerad grip
GR10
Gripcylinder
GR10 - 301898K/301470K
EC15
B-serien
Överdel
Överdel
Komponenter, ss5 & ss10 (DC2/SVAB)
Komponenter, ss9
Komponenter, ss5 tiltcyl EC20
Tiltcylinder
EC15B - 1011838/1013499/1011836
Styrsystem
ss10 DC2
ss10 SVAB
ss5
ss5 Menzi Muck
Std. Ventiler & kablar
ss10 DC2/SVAB
ss9
ss5
Rotatorstomme
Huvudkomponenter
Huvudkomponenter 'Omvänd'
Block & Svivlar
Ventilbl. & Sv. EC10-30/209/219/226 '6-ch'
Redskapsfäste
S45/50
S60
S1
CW30S GR20
Standard komponenter
Std komp. S60 (until 2018)
Std komp. CW30EC/CW40EC
Std komp. S45/S50
Låscylindrar
S45/50 - 400848
S60 (EC G1) - 400849
S1, KM1, SMP1&2 - 400551K (Ersatt av 400651K)
S1&2, KM1&2, SMP1, B18 - 400651K
Integrerad grip
GR10
GR20
GR20 RR 'Järnvägsgrip'
Gripcylindrar
GR10 - 301898K/301470K
GR20 - 301931K/301469K
GR20RR Ø70/32 - 1016958 'Järnvägsgrip'
GR20RR Ø70/40 - 1020026
Föregående serie
Överdel
Tiltöverdel EC15
Tiltcylinder
EC15 - 1008114/1000312 'gjutna ok'
EC15 - 400697
El/hydraulik
Elsystem
Hydraulsystem
Rotatorstomme
Huvudkomponenter 'Fr.o.m. 2009-01'
Huvudkomponenter 'Fram till 2008-12'
Huvudkomponenter 'Omvänd, fram till 2008-12'
Rädlinger Huvudkomp.
Ventilblock & Svivlar
Ventilbl. & Sv. EC10-30/209/219/226 '6-ch'
Ventilbl. 4v & Svivel 6-ch EC15
Redskapsfäste
S45/50 EC15
S60 EC15
B18 EC15
S1 EC15A
Lehnhoff EC15
GJ500 EC15
SMP2 EC15
SMP2 EC15 Euro
KM1 EC15
SW33 EC15
SW48 EC15
CW30 EC15
Låscylinder
S45/50 - 400848
S60 (EC G1) - 400849
S70, S80, SMP2, SMP105, KM09 - 1011422 (Ersatt av 1014515)
S70, S80, SMP2, SMP105 spring - 1014515
S1, B18, KM1, SMP1&2 - 400551K (Ersatt av 400651K)
S1, KM1&2, SMP1, B18 - 400651K
SW33 - 401268
Integrerad grip
GR10
GR20
Gripcylindrar
GR10 - 301898K/301470K
GR20 - 301931K/301469K
EC20
B-serien
Överdel
Överdel
Komponenter
Tiltcylinder
EC20B - 1014264/303385/1006888/1006617
Styrsystem
ss10 DC2
ss10 SVAB
Std. Ventiler & kablar
ss10 DC2/SVAB
ss9
ss5
Rotatorstomme
Huvudkomponenter
Huvudkomponenter 'Omvänd'
Block & Svivlar
Ventilbl. & Sv. EC10-30/209/219/226 '6-ch'
Redskapsfäste
S60 GR20
S70
S1
CW30
PUP80
Standard komponenter
Std komp. S60 (until 2016)
Std komp. S70
Std komp. CW30EC/CW40EC
Låscylindrar
S60 (EC G1) - 400849
S70, S80, KM09 - 401168K (Ersatt av 1011422)
S70, S80, SMP2, SMP105, KM09 - 1011422 (Ersatt av 1014515)
S70, S80, SMP2, SMP105 spring - 1014515
S1, B18, KM1, SMP1&2 - 400551K (Ersatt av 400651K)
S1&2, NTP30, KM1&2, SMP1, B18 - 400651K
HYD 'Hydrema' - 301448
Integrerad grip
GR20
Gripcylindrar
GR20 - 301931K/301469K
Föregående serie
Överdel
Överdel
Tiltcylinder
EC20 - 1014264/303385/1006888/1006617 'gjutna ok'
EC20 - 400554/401733 (2000-2008)
El/hydraulik
Elsystem
Hydraulsystem
Hydraulsystem 'Fr.o.m 2000-01-01 t.o.m. 2005-01-01'
Rotatorstomme
Huvudkomponenter 'Fr.o.m. 2009-01'
Huvudkomponenter 'Fr.o.m. 2000-01 till 2008-12'
Huvudkomponenter 'Omvänd, fr.o.m. 2009-01'
Rädlinger huvudkomp.
Block & Svivlar
Ventilbl. & Sv. EC10-30/209/219/226 '6-ch'
Ventilbl. 4v & Svivel 4-ch EC10/20/30
Redskapsfäste
S60 EC20
S70 EC20
S70/KM09 EC20
S1 EC20
S2 EC20
GJ500 EC20
CW30 EC20
CW30 Std komp.
B18 EC20
SMP1 EC20
SMP2 EC20
SMP2 EC20 Euro
KM1 EC20
KM2 EC20
SMP25 EC20
SW33 EC20
SW48 EC20
Låscylindrar
S60 (EC G1) - 400849
S70, S80, KM09 - 401168K (Ersatt av 1011422)
S70, S80, SMP2, SMP105, KM09 - 1011422 (Ersatt av 1014515)
S70, S80, SMP2, SMP105 spring - 1014515
S1, B18, KM1, SMP1&2 - 400551K (Ersatt av 400651K)
S1&2, NTP30, KM1&2, SMP1, B18 - 400651K
SW33 - 401268
Integrerad grip
GR20
Gripcylinder
GR20 - 301931K/301469K
EC30
Överdel
Standard komponenter 'ECHF'
QS80 'ECHF'
QS70, S2, 27, SMP1/105, servicepaket
Tiltcylinder
EC30 - 1014265/301630 '90/45' (from 2003-10)
EC30 - 300735 '100/50' (until 2003-10)
Styrsystem
ss10 (DC2/SVAB) 'ECHF'
ss10 DC2 '6-ch'
ss5 '6-ch'
Ventiler & kablar ss10 'ECHF'
Ventiler & kablar ss10 '6-ch'
Ventiler & kablar ss9 '6-ch'
Ventiler & kablar ss5 '6-ch'
Rotatorstomme
ePS1 Sensor
Huvudkomponenter
Rädlinger Huvudkomponenter
Block & Svivlar
Ventilblock & Svivel ECHF
Ventilbl. & Sv. EC10-30/209/219/226 '6-ch'
Ventilbl. 4v & Svivel 4-ch EC10/20/30
Redskapsfäste
QS80 EC30 'ECHF'
QS80 GR30 EC30 'ECHF'
S1 EC30 'ECHF'
S1 GR20 EC30 'ECHF'
S70 EC20/EC30
S80 EC30
S1 EC30
S2 EC30
S3 EC30
SMP1 EC30
SMP105 EC30
KM1 EC30
KM2 EC30
GJ500 EC30
Standard komponenter
QS70 Std komp.
QS80 Std komp.
S70 Std komp.
S80 Std komp.
S1 Std komp.
S2, NTP30 Std komp.
CW30EC/CW40EC Std komp.
Låscylindrar
QS80 V2 - 1048783
QS80 - 1035494
QS70 V4 Forged - 1058122
QS70 V4 - 1049245
QS70 80/50 - 1035613
QS70 - 1025624
S70, S80, KM09 - 401168K (Ersatt av 1011422)
S70, S80, SMP2, SMP105, KM09 - 1011422 (Ersatt av 1014515)
S70, S80, SMP2, SMP105 spring - 1014515
S1, B18, KM1, SMP1&2 - 400551K (Ersatt av 400651K)
S1&3, KM2, SMP1, B18 - 400651K
S2, NTP30, KM1 - 402503K
Integrerad grip
GR20
GR30
Gripcylindrar
GR20/GR30 - 301931K/301469K
Cylindrar
Tiltcylindrar
EC204 - 1029849
EC206B - 1066135
EC206 - 1040873
EC206 - 1023189 (until 2016-12)
EC209 - 1041412
EC209 - 1019630/1023761/1023760 (until 2017-01)
EC214 - 1041414
EC214 - 1024186 (until 2017-05)
EC214W - 1030380
EC219 - 1070275
EC219 - 1019892/1023713/1023714/1017501
EC226 - 1019884/1023715/1023716/1017259
EC226 - 1017719 (CC125/SL387)
EC219W/EC226W - 1023811
EC233 - 1039112
EC02B - 1053601
EC02 - 303440/303561
EC05B - 1001840/1008573
EC05 - 400552
EC10B - 1011837/1011835
EC10 Marine - 404998
EC10 - 1008113/1000311 'gjutna ok'
EC10 - 400553 (2000 - 2008)
EC15B - 1011838/1013499/1011836
EC15 - 1008114/1000312 'gjutna ok'
EC15 - 400697
EC20 for EC15 MenziMuck - 1005835
EC20B - 1014264/303385/1006888/1006617
EC20 - 400554/401733 (2000-2008)
EC30 - 1014265/301630
EC30 - 300735 '100/50' (until 2003-10)
Låscylindrar
QSM45 Forged - 1067280
QSM45 - 1055643
QSM40 - 1063791
S40S/QS40 - 1056690
QS45/50 V4 Forged - 1067285
QS45/50 V4 - 1048780
QS45/50 V3 - 1036925
QS45/50 V2 - 1027573
QS45 - 1025383
QS60 V4 - 1045379
QS60 for sensor - 1036394
QS60 V2 - 1027595
QS60 - 1023788
QS70 V4 Forged - 1058122
QS70 V4 - 1049245
QS70 V2 - 1028940
QS70 80/50 - 1035613
QS70 - 1025624
QS80 V2 - 1048783
QS80 - 1035494
S30 - 303489
S40 - 1003530
S45/50 - 1021885 (rotated ear)
S45/50 - 400848
S60 (EC G1) - 400849
S60 (EC G2 & RF) - 400986 (until 2018)
S70, S80, SMP2, SMP105 spring - 1014515
S70,S80,SMP2,SMP105,KM09 - 1011422 (Replaced by 1014515)
S70, S80, KM09 - 401168K (Replaced by 1011422)
S1&2&3, NTP30, KM1&2, SMP1, B18 - 400651K
S1, B18, KM1, SMP1&2 - 400551K (Replaced by 400651K)
S2,NTP30 (EC30/233/RFS2), KM1 (EC30), KM2 (EC20) - 402503K
Hydrema - 301448
Lännen, SMP3 - 202735
GJ300 - 202747
GJ500 (LE EC10) - 200500K
CW30EC - ss5, ss9IQ, ss10 - 1007727
SW33 - 401268
ECO45 <2014 - 1007455
ECPUP - 1011225
PUP60 - 100690K
PUP65A-PUP80B - 100764K
PUP80AHD-PUP80BHD - 100722K
RFS40, TFS40, S40 EC05A - 300783
RFS60 - 400986
Gripcylindrar
GRD40 - 1063632
GRD45/50 (GRD10) - 1036480/1036481
GRD60 (GRD20)/GRD70 - 1048549
GRD60 (GRD20) - 1035017/1035018 (until 2019-05)
GR05 - 301900K/301901K
GR10 - 301898K/301470K
GR20 - 301931K/301469K
GR20R2 - 1032503
GR20RR Ø70/40 - 1020026
Block & Svivlar
Anslutningsbl. & Svivel QSM40
Anslutningsbl. & Svivel QSM45/50
Anslutningsbl. & Svivel QSM60
Anslutningsbl. & Svivel QSM70
Anslutningsbl. & Svivel QSM QS80/CW30/40
Ventilblock & Svivel ECHF
Ventilblock & Svivel EC204
Ventilblock & Svivel EC206
Venilblock & Sv. EC10-30/209/219/226 '6-ch'
Ventilblock & Svivel EC02
Ventilblock & Svivel EC05B
Ventilblock & Svivel 'med hållare' EC05A
Ventilblock & Svivel EC05
Ventilblock & Svivel EC10/20/30
Ventilblock & Svivel EC15
Integrerade gripar
GR05 'Integrerad grip'
GR10 'Integrerad grip'
GR20 'Integrerad grip'
GR20HD 'Integrerad Grip m. expander'
GR20R2 'Järnvägsgrip'
GR20RR 'Järnvägsgrip'
GR30 'Integrerad Grip'
Maskinfästen
S Fästen
S30S
S40 (from 2025)
S45 (from 2024)
S60 (from 2023)
S70 (from 2024)
QS Fästen
QS40
QS45/QS50
QS60
QS70
QS80
RF S Fästen
RF S30 Mekanisk
RF S40 (until 2024)
RF S40M (until 2024)
RF S45/50 (until 2018)
RF S50 Mekanisk
RF S60 (until 2018)
RF S60 Mekanisk
RF S70 (until 2018)
RF S80
RF S1
RF S2
RF S3
RF Hydrema
Standard komponenter
Std komp. S40 (from 2025)
Std komp. S45 (from 2024)
Std komp. S60 (from 2023)
Std komp. S70 (from 2024)
Std komp. QS40
Std komp. QS45/QS50
Std komp. QS60
Std komp. QS70
Std komp. QS80
Std. komp S30S
Std komp. S30SEMI
Std komp. S40 (until 2024)
Std komp. S40M (until 2024)
Std komp. S40SEMI
Std komp. S45/S50 (until 2018)
Std komp. S60 (until 2018)
Std komp. S70 (until 2018)
Std komp. S80
Std komp. S1
Std komp. S2, NTP30
Std komp. Hydrema
Tiltfästen
TFS40B
TFS45/50
TFS60
TFS70 & K09
TFS80
TFS1
TFS1 HD
TFS2
Standard komponenter
Std komp. S40 (from 2025)
Std komp. S45 (from 2024)
Std komp. S60 (from 2023)
Std komp. S70 (from 2024)
Std komp. QS40
Std komp. QS45/QS50
Std komp. QS60
Std komp. QS70
Std komp. QS80
Std. komp S30S
Std komp. S30SEMI
Std komp. S40 (until 2024)
Std komp. S40M (until 2024)
Std komp. S40SEMI
Std komp. S45/S50 (until 2018)
Std komp. S60 (until 2018)
Std komp. S70 (until 2018)
Std komp. S80
Std komp. S1
Std komp. S2, NTP30
Std komp. Hydrema
Redskap
Gripkassett GRD
GRD40
GRD45/50B
GRD60B
GRD70B
GRD45/50 (GRD10) - used until 2025-06
GRD60 (GRD20) - used until 2023-02
GRD70 - used until 2024-02
Cylindrar
GRD40 Cyl. 1063632
GRD45/50 (GRD10) Cyl. 1036480/1036481
GRD60 (GRD20)/GRD70 Cyl. 1048549
GRD60 (GRD20) (1035017/1035018) until 2019-05
Sopvals SWD
SWD40
SWD45
SWD60
Sopvals SR
Sopvals SR800/1300/1600/1800/2000
EC-Oil komponenter
Top ECO40 W
Top ECO45/50 W
Top ECO60 W
Top ECO70 W
Top ECO80 W
Grindar QS
Markvibratorer
PC3200/PP3200
Komponenter PC3200
Komponenter PP3200
Vibrationsenhet PP
PC6000
Komponenter
Vibrationsenhet
PC9500
Komponenter
Vibrationsenhet
PP350
Komponenter
Vibratorenhet
PP600
Komponenter
Vibratorenhet
PP950
Komponenter
Vibrationsenhet
EC-Oil komponenter
Top ECO40 W
Top ECO45/50 W
Top ECO60 W
Top ECO70 W
Top ECO80 W
Grindar QS
Sten- & sorteringsgripar
SG03
SG06
SG09
SG12
SG19
SG26
SG33
SK02
SK05
-- > 2014-02-28 - hylsa
2014-03-01 -- > utan hylsa
Expander
SK10
-- > 2014-02-28 - hylsa
2014-03-01 -- > utan hylsa
Expander
SK15
-- > 2014-02-28 - hylsa
2014-03-01 -- > utan hylsa
Expander
SK20
-- > 2014-02-28 - hylsa
2014-03-01 -- > utan hylsa
Expander
SK30
-- > 2014-02-28 - hylsa
2014-03-01 -- > utan hylsa
Expander
Cylindrar
SG03/SK02 Cylinder 1047677
SK05 Cylinder 201020K
SK10/15 Cylinder 1028607 (replaces 201005K)
SK20 Cylinder 1012704
SK20 Cylinder 1001242
SK30 Cylinder 1007312
EC-Oil komponenter
Top ECO40 W
Top ECO45/50 W
Top ECO60 W
Top ECO70 W
Top ECO80 W
Grindar QS
Timmergripar
TG25HD V2
TG25HD
TG28HD
TG42HD V2
TG42HD
TG55HD
Cylindrar
Cylinder TG25HD V2
Cylinder TG25HD
Cylinder TG28HD
Cylinder TG42HD
Cylinder TG55HD
EC-Oil komponenter
Top ECO40 W
Top ECO45/50 W
Top ECO60 W
Top ECO70 W
Top ECO80 W
Grindar QS
Gaffelställ
GHH1200 V2 (Hydraulisk)
GHH1200/1500 (Hydraulisk)
GHH1000L (Hydraulisk)
GH1200 V2 (Mekanisk)
GH1200/1500 (Mekanisk)
GH1000 (Mekanisk)
GH1000L (Mekanisk)
EC-Oil komponenter
Top ECO40 W
Top ECO45/50 W
Top ECO60 W
Top ECO70 W
Top ECO80 W
Cylindrar
Cylinder (1031181)
Cylinder (1050862)
Skopor
CAT - Tänder & låsning
CAT - Bladtänder & låsning
ESCO - Tänder och låsning
Ripper
CAT - Tänder & låsning
ESCO - Tänder och låsning
Asfaltsskärare
S30/150, S30/180, S40 (TC02/TC05)
S45, S50, S60, S70, S80, S1 (TC10/TC15/TC20)
Avjämningsbalk
GRB 1250/1500L V2
GRB 1500/2000/2500/3000 V2
GRB 1250/1500L (V1)
GRB 1500/2000/2500/3000 (V1)
Elsatser
ePS1
ePS Parts 'EC209PS'
ePS-tillsats
ePS detaljer
ePS Parts 'EC214PS'
ePS-tillsats
ePS detaljer
ePS Parts 'EC219PS'
ePS-tillsats
ePS detaljer
ePS Parts 'EC226PS'
ePS-tillsats
ePS detaljer
ePS Parts 'EC233PS'
ePS-tillsats
ePS detaljer
Handtag
MIG2
Danfoss L8
Övrigt
Maskinel
DC2 Enkelpyts (841301)
SS9IQ-2 4-slang med integrerat lås (8000038)
Q-safe QLM
Q-safe QLM (841373/841376/8000270)
QSC
QSC Standardiserad låssats
QSC-tillsats, montering på äldre EC
QSC reservdelar
Annonser